Versa Lift
Versa Lift
Allelys hire out both the Versa Lift 40/60 and the Versa Lift 60/80 as part of the specialist equipment fleet available to our customer base.
Versa Lift available for hire
The Versa Lift is a unique heavy duty style of forklift, with an extendable counterweight on the back. This extendable counterweight is what enables the compactly designed piece of equipment to achieve the heavier lifts. They are also equipped with a removable hydraulic boom.
Designed specifically for moving heavy machinery smoothly and safely on solid surfaces for riggers, the Versa Lift is ideal for working inside buildings or ships, where door heights and widths can restrict the use of other larger equipment.
Supporting projects with equipment hire
The Versa Lift 40/60 and 60/80 are part of our specialist equipment fleet available to hire, providing our customers complete flexibility with their project requirements.
Our hire equipment will be supplied with a fully skilled operator and we also have the in-house capabilities to provide additional support including engineering, transport and bespoke design and fabrication.
If you would like any additional information, please get in touch where one of our experienced team members will be able to assist you.
Key Features 
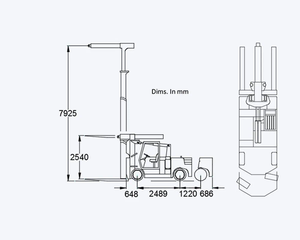
Versa Lift 40/60
- Capable of lifting loads up to 27.2te
- GM 3 L LP gas engine
- Maximum extension height of 7.9m
- Maximum counterweight extension of 1.2m
- Maximum fork lift of 2.54m from base position
- Tilt: Forward 12°, Backward 7°
Versa Lift 40/60 – Weights
Total gross: 25.85te
Removable counterweight: 6.8te
Key Features 
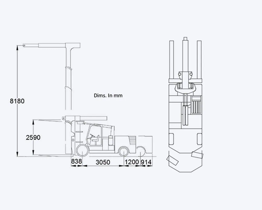
Versa Lift 60/80
- Capable of lifting loads up to 45.4te
- GM 4.3 L LP gas engine
- Maximum extension height of 8.18m
- Maximum counterweight extension of 1.2m
- Maximum fork lift of 2.59m from base position
- Tilt: Forward 10°, Backward 7°
Versa Lift 60/80 – Weights
Total gross: 36.3te
Removable counterweight: 13.6te
Excellence
Delivered
Case Studies
Each and every project is unique. Our vast service offering and extensive equipment fleet enables us to work on some of the most exciting and challenging projects within the UK. Take a look at a selection of our case studies below.
Lets Talk...
We would love to hear more about the challenges you are facing. This form below will help us understand that project better and one of our experienced members of the team will be pleased to help you.